UBS 750

Rendelési kód | 9.020009
  • 750 liter Tároló mérete
  • - Működés módja
  • zománcozott acél Tároló anyaga
  • 99 kW Hőcserélő teljesítmény
  • "C" kategória Szezonális hatásfok (2010/30/EU)

Bemutatás

Melegvíz tároló zománcozott acélból

- Űrtartalom: 750 liter
- Beépített magnézium anódrúd
- Hőcserélő teljesítmény: 99 kW*
- Tároló felfűtési ideje 10 °C-ról 45 °C-ra: 24 perc*
- DIN 4708 szerinti teljesítmény mérőszám: 39,5
- Hőcserélő felülete: 3,7 m2
- Tároló és hőcserélő anyaga: zománcozott acél
- Tömege víz nélkül: 210 kg
- Hőveszteség: 3,6 kWh / 24 óra
- Megengedett legnagyobb nyomás a tárolóban: 10 bar
- Megengedett legnagyobb nyomás a hőcserélőben: 16 bar

*80/60 °C-os hőlépcsőjű fűtővíz esetén

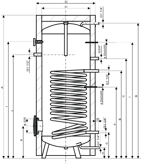
Méretek

Jelmagyarázat:

A 1998 mm
B 1887 mm
C 1242 mm
D1 750 mm
D2 910 mm
E 830 mm
F 402 mm
G

295

mm
H 99 mm
I 1332 mm

J

1005 mm
K 375 mm
Oldal tetejére