- 3 bar Maximális rendszer nyomás
- 90.00°C Maximális fűtővíz hőmérséklet
- 34,27 kPa Szivattyú hasznos teljesítménye (1000l/óra mellett) keverőszelep nélküli körön
- 35,50 kPa Szivattyú hasznos teljesítménye (1000l/óra mellett) keverőszelepes körön
Bemutatás
Hidraulikus zóna egység két kevert körhöz
DIM HC 2BT hidraulikai modul zárt lemez szekrényben, falra szerelhető (vagy igény szerint falbasüllyeszthető) kivitelben. Előnye a kis helyigény - mélységük mindössze 19 cm! - valamint az esztétikus megjelenésük és a könnyű felszerelhetőségük. A modul tartalmazza a zónák függetlenített vezérlését (zónánkénti szobatermosztát opcióval), a megfelelő számú fűtési keringtető szivattyút és a hőszigetelt hidraulikai váltót a bekötő csövekkel és csatlakozókkal, valamint az ABT és A2BT változat esetében a motoros keverőszelepet és integrált időjárásfüggő szabályozást. Ezekkel a DIM HC egységekkel szinte bármilyen szabályozási igény megoldható, mivel korlátlan számban összeköthetőek! A továbbfejlesztett elektronikának köszönhetően a DIM HC egységeket Immergas BUS csatlakozással felszerelt hőszivattyúkkal üzemeltetve az egyes zónák időjárásfüggő szabályozásának működéséhez egy érzékelő csatlakoztatása is elegendő. Az egységek alacsony energiaszíntű szivattyúval felszereltek.
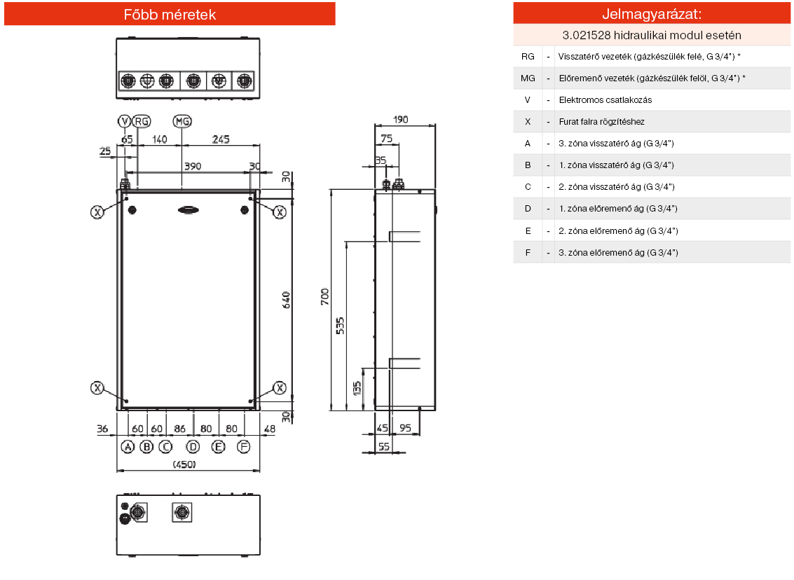
Méretek

Műszaki adatok
